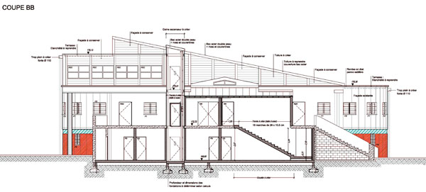
Deux circulations verticales sont proposées entre le niveau RDC et les niveaux supérieurs
- un escalier encloisonné pour rejoindre le hall d’entrée à R+1. L’implantation choisie permet de conserver l’escalier extérieur
- un ascenseur desservant le RDC et les 2 niveaux existants
La création de circulations verticales conduit à créer un espace entre la Maison des Jeux et la terrasse d’accès, qui nécessite de supprimer l’auvent existant qui protège l’entrée et de le remplacer par des poutres bois formant ainsi une pergola.
Le volume des circulations verticales permet de traiter un sas d’entrée avec portes vitrées. A l’extérieur un palier avec une petite rampe sur 1,50 m de long permet de rattraper le niveau de la terrasse au-delà des marches existantes.
